Grand 5 pièces de 95m² avec balcon et parking collectif
16 mai 2025
Réf : 85943369-fr
À vendre – Spacieux 5 pièces de 95m² avec triple exposition, balcon avec vue dégagée – étage élevé – parking collectif + cave.
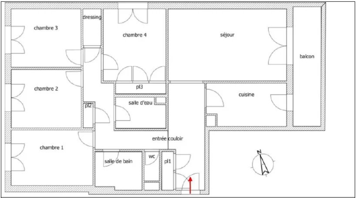
Dans un immeuble bien tenu des années 80, situé au 5ᵉ étage avec ascenseur, découvrez ce très grand appartement traversant de 5 pièces, offrant une vue imprenable sur le lit du Paillon.
Ce bien se distingue par sa luminosité, sa distribution fonctionnelle et son potentiel d’aménagement.
Il se compose d’un espace nuit bien séparé avec quatre chambres, un dressing, une salle de bains, une salle d’eau et un WC indépendant.
Côté jour, vous profitez d’une belle entrée avec placard, d’un séjour d’environ 20 m², et d’une cuisine indépendante pouvant être ouverte sur le salon selon vos préférences. Le séjour et la cuisine donnent accès à un balcon orienté est, idéal pour profiter du soleil matinal et de la vue dégagée.
Les plus :
• Parking collectif clos dans la résidence
• Chauffage, eau chaude et eau froide compris dans les charges
• Copropriété bien entretenue, aucune dépense à prévoir.
• Transports et commodités à proximité immédiate
• Une Cave
Un bien rare, parfait pour une grande famille ou ceux en quête d’espace et de confort en ville.
À visiter sans tarder !
Prix :
Adresse :
06000 Nice
Surface habitable :
94 m²
Nb de pièces :
5
Équipements :
| € 290 000 € |
Adresse :
Nb de pièces :
| État du bien | Bon état |
|---|---|
| Nb de chambres | 4 |
| Exposition | Est-ouest |
| Nombre d'étages | 8 |
| Nb de salles de bains | 2 |
| Nb de wc | 1 |
| Type de chauffage | Central Collectif Gaz |
| Type d'eau chaude | Collective Chaudière |
- Ascenseur
- Fibre optique
- Vidéophone
- Interphone
- Vidéo surveillance
Diagnostic de Performance Énergétique

